摘要:河南对问题楼盘和保交楼项目批复262亿元配套融资/石家庄市区2022年第二批公租房配租报名工作时间予以延期/最新供暖时间!河北8地正式公布→/多地开始接种吸入式疫苗!接种步骤→/11月11日晚,别错过!/提醒!核酸检测时,这个动作不要做→/11月8日起施行!河北住宅专项维修资金出台新规定/双向八车道!年底开工! 复兴大街部分路段市政化改造工程进展曝光/栾城区发布征地公告 拟征收280亩地开发公建配套/长安区新增商业配套!万凯大厦建设项目规划公示 拟建3栋办公楼。
11月11日星期五
农历十月十八
石家庄:阴 9℃~12℃

天气
今天白天,全省阴有小到中雨,其中保定东部、雄安新区、石家庄东部局地有大雨。
今天夜间到12日,全省阴,承德东部、唐山、秦皇岛、廊坊北部有中雨,局地有大雨,张家口、承德中北部有小到中雨转雨夹雪或小到中雪,其他地区有小雨到中雨。

》》河南:对问题楼盘和保交楼项目批复262亿元配套融资
11月9日,记者从河南银保监局获悉,在多个部门的协同配合下,目前河南省房地产行业融资平稳有序,金融支持“保交楼 稳民生”取得阶段性成效。
河南银保监局分阶段组织全省有银行贷款的问题楼盘和保交楼项目建立“一楼一策一专班一银行”机制,逐项目确定牵头银行。有序做好房地产行业融资,据了解,今年前10个月,全省银行机构新投放房地产开发贷款320.12亿元,新投放个人按揭贷款 1967.64亿元。同时,各银行机构积极做好存量债务展期,运用好并购贷款、新增开发贷款、新增按揭贷款等方式,加大对保交楼项目配套融资支持力度。截至10月末,全省银行机构对开发贷实施延期展期314.1亿元,对问题楼盘和保交楼项目提供配套融资已批复262亿元、已投放151.5亿元。
在满足居民住房合理融资需求方面,全省银行机构严格落实首套住房贷款利率下限调整政策,提高按揭贷款审批效率,住房贷款利率明显下行。9月份,全省银行机构投放的个人住房贷款平均利率为4.13%,较年初下降2.01个百分点。在多种纾困措施下,前10个月全省对个人按揭贷款实施延期还本付息142.46亿元。同时,充分运用好保障性租赁住房政策,提升银行投放保障性租赁住房贷款积极性。截至10月末,河南省保障性租赁住房贷款较年初增加超70亿元,其中用于保交楼项目的保障性租赁住房贷款已发放16.4亿元。
“我们将继续认真贯彻落实党中央决策部署和省委、省政府各项工作要求,继续坚持‘房住不炒’的定位,指导银行机构落实好差别化信贷政策,保持房地产融资平稳有序。”河南银保监局负责人表示。
》》石家庄市区2022年第二批公租房配租报名工作时间予以延期
为了让更多的公租房保障家庭能够参加市区2022年第二批配租申请,我市市区2022年第二批公租房配租报名工作时间原定于11月2日至8日,现予以延期。11月9日各保障家庭可继续到受理窗口进行报名,报名截止日期另行通知。
石家庄市保障性住房管理中心
2022年11月7日
》》最新供暖时间!河北8地正式公布→
廊坊
从廊坊市住房和城乡建设局获悉,为做好今冬明春供热保障工作,确保人民群众温暖过冬,按照市委、市政府工作部署,根据气象会商研判和疫情防控形势,11月10日廊坊市全市启动供热系统运行,11月15日零时达标供热。
定州
从定州市城市集中供热管理办公室获悉,按照市委、市政府安排部署,经研判近期天气情况和疫情防控形势,定州市于11月8日启动供暖工作,供热系统逐步升温,11月15日零时正式达标供热。
供热初期,居民家中可能出现因憋气、循环不畅等原因造成的室温不热现象。提醒广大居民要关注阀门是否处于开启状态、管道内是否存有集气,如有集气请及时排气,如发现跑、冒、滴、漏等现象,请及时拨打热力公司客服维修电话0312-7907566(24小时服务)报修。
为快速受理、解决供热问题,热力公司在幸福郡小区(范围:清风街至明月街,电话:5535170)、幸福里小区(范围:明月街以西及铁西,电话:5535558)、上东国际小区(范围:清风街以东,电话:5535556)设置供热服务管网所,广大热用户可就近办理供热有关业务。
特别提醒:严禁用户私自改动暖气设备及私自安装循环泵、水嘴等影响供热系统安全运行的设备,如对供暖效果造成严重影响,将追究其相关责任。
石家庄
为保障广大人民群众温暖过冬,根据气象会商研判结果,按照市委、市政府要求,决定提前5天,于11月10日零时全市正式启动供暖工作。供暖期间,如遇运行不畅、跑冒滴漏、室温不达标等问题,请拨打供热企业服务电话或12345政务服务便民热线。
保定
11月7日,从保定市执法局获悉,为做好今冬明春供热工作,保证居民温暖过冬,按照市委、市政府部署,根据气象会商研判和疫情防控形势,全市(除涞源县已于11月1日启动供热外)于11月8日启动供热工作,供热系统逐步升温,15日零时正式达标供热。
雄安新区
从雄安新区冬季清洁取暖工作领导小组办公室获悉,为深入贯彻落实以人民为中心的发展思想,保障新区群众温暖过冬,雄安新区决定11月8日零时启动供热试运行。
供热试运行启动后,雄安新区各热力企业开始运行调试,系统加压、上水,保持热态运行,居民用户家中将逐步升温,直至11月13日实现达标供热。
邢台
记者从邢台市城管局获悉,按照邢台市委、市政府工作安排,2022年11月15日零时,邢台市将正式达标供暖。11月11日起,全市集中供热将逐步暖管升温。
邯郸
记者从邯郸市城市管理综合行政执法局了解到,按照计划,邯郸市供热设施11月8日逐步升温运行,15日实现达标供暖。如遇气温大幅下降,将提前升温,确保市民温暖过冬。
衡水
据衡水晚报报道,按照市委、市政府的安排部署,根据天气变化情况,衡水市主城区各换热站陆续启动,于11月5日起带温运行,11月10日达标供热。
》》多地开始接种吸入式疫苗!接种步骤→
11月9日晚,媒体发布消息称,天津市疫情防控指挥部决定自11月10日起,将在全市范围内正式启动吸入用重组新冠病毒疫苗(5型腺病毒载体)加强免疫接种工作。有加强免疫需要的市民可在全市16个区的指定接种地点(附后)进行预约,免费接种康希诺吸入式疫苗。
记者注意到,除天津外,目前,乌鲁木齐、上海、苏州、无锡、扬州等地也已开始接种吸入用重组新冠病毒疫苗(5型腺病毒载体)。
据了解,康希诺推出的全球首款吸入用新冠疫苗,其原理为用雾化器将疫苗雾化成微小颗粒,通过口腔吸入的方式完成接种。该接种过程无需针刺,一呼一吸间即可获得高效免疫保护。有接种者形容:“就像在吸一杯奶茶一样,而且吸进去的味道有点甜。”

接种吸入式疫苗步骤
工作人员使用专用的雾化给药装置,将疫苗雾化至雾化杯中,并将雾化杯递给受种者,每次剂量为0.1mL。
第一步,避开雾化杯,深呼一口气。
第二步,口含雾化杯吸嘴,深吸至杯中无雾。
第三步,憋气至少5秒。

接种疫苗仍是主动免疫的有效措施
据新华社此前报道,国务院联防联控机制科研攻关组疫苗研发专班工作组专家表示,面对复杂的疫情形势,接种疫苗仍是主动免疫的有效措施。
吸入用重组新型冠状病毒疫苗(5型腺病毒载体)通过口腔吸入的方式完成接种,吸入剂量约为肌肉注射剂量的五分之一。Ⅲ期临床试验关键数据分析结果显示,在两针灭活疫苗的基础上采用该重组蛋白疫苗进行序贯加强免疫,对于奥密克戎变异株感染引起的新冠肺炎(轻型及以上)可产生良好的保护力,并具有良好的安全性。
目前,吸入式重组新冠病毒疫苗在我国18岁及以上健康成年人中开展的与新型冠状病毒灭活疫苗序贯加强免疫的临床研究结果显示,采用吸入式重组新冠病毒剂型与灭活疫苗序贯加强免疫可以显著增强免疫应答。
免疫持久性研究显示,使用吸入式重组新冠病毒疫苗异源接种6个月后,依旧保持了高水平中和抗体。一项在上万人中开展的安全性研究结果显示,吸入式重组新冠病毒疫苗在18岁以上人群中使用安全性良好,未发现严重不良反应。
常见的全身不良反应包括疲劳、头痛、发热、口干和咽喉肿等症状,一般无需特殊处理,可自行恢复。
》》11月11日晚,别错过!
微微泛红的火星与皎洁明亮的月球近距离“相遇”会擦出怎样的火花?天文科普专家介绍,11月11日晚,一次赏心悦目的火星合月将亮相天宇,届时只要天气晴好,我国感兴趣的公众凭借肉眼就能目睹这幕浪漫的“星月童话”。

所谓行星合月,是指月球和行星出现视赤经相同的时刻。视觉上来看,合月之时是行星与月球比较接近的时候。如果发生合月时,月球和行星的视赤纬也比较接近,地球上部分地区还可能看到月掩行星的景象。
作为太阳系八大行星之一,火星是地球轨道外的第一颗行星,颜色呈橘红色。可以说,除月球之外,火星是最受人类关注的天体。截至目前,人类已经陆续向火星发射了数十个探测器。在火星上寻找生命的痕迹,成为人类一直孜孜不倦探索火星的重要动力之一。
中国天文学会会员、天津市天文学会理事修立鹏介绍,今年10月30日起,火星开始逆行,自东向西移动。逆行期间,火星的亮度会持续上升,从逆行初时的-0.9等逐渐增加到12月8日冲日时的-2.6等。眼下,微微泛红的火星已是非常醒目,几乎整夜可见,成为夜空中不容忽视的存在。它与熠熠生辉的木星遥相辉映,竞放光芒。
11月11日21时46分,火星合月。这是一次比较好看的行星合月。天黑后不久,一轮农历十八的亏凸月会与火星携手从东方升起,微微泛红的火星位于月球右下方。此次合月时,火星的亮度已经达到-1.5等,灿若宝石。
“我国感兴趣的公众可在前半夜观赏,后半夜月亮就与火星渐行渐远了。观测时只需挑选无遮蔽物、看得到月亮的地方即可。喜欢天体摄影的公众可以尝试拍摄一张‘星月同框’的照片。如果使用小型天文望远镜还可能观测到火星表面的颜色和两极的白色极冠。”修立鹏说。
》》提醒!核酸检测时,这个动作不要做→
核酸检测是阻断新冠病毒传播蔓延的有效途径。在新冠病毒传播的途径中,核酸检测是易发生交叉感染场景之一。排队做核酸检测,为什么会有这么大的中招风险?日前,就此问题武汉市中心医院呼吸与危重症医学科主任胡轶给予答复。
忽略这个动作
一呼一吸间病毒找上你
奥密克戎新冠病毒的变异株在全球加速流行,BA.5.2变异株潜伏期更短、传染性更强、传播速度更快,发生隐匿性传播的风险更高。面对“不一般”的奥密克戎,快速、扩面、高频开展大规模核酸检测是跑赢病毒传播的重要策略。
有媒体报道,在一轮又一轮核酸筛查中,某些城市出现在排队进行核酸检测时“中招”的案例。国内某地一名2岁的男童随家人排队做核酸检测,其间家人与邻居有近距离交谈,后该邻居被确定为确诊病例。后该男童又随家人与另一邻居交谈,另一邻居随后也被确诊为新冠肺炎病例。一周后,该男童被诊断为新冠肺炎确诊病例轻型。
“除了交谈,核酸检测造成感染,还有一个动作,许多人都容易忽视,从而增加病毒传播风险。”胡轶表示,假设队伍前面正接受检测的是一个阳性感染者,感染者自己可能不知道,面对大白,摘下口罩,张开嘴巴,正常的呼气。等轮到你了,你张开嘴巴,同时也正常的吸气,一呼一吸之间,病毒就成功找上了你!
“新冠病毒主要通过飞沫传播等方式进行传播。”胡轶介绍,病毒侵入机体后,病毒会借助飞沫向外界扩散传播,若被其他人群吸入呼吸道,可导致病毒在感染者体内大量生长和繁殖,进而造成飞沫传播感染。”
全程戴好口罩
检测时尽量屏住呼吸
所以,排队核酸检测时,如何做好个人防护?胡轶强调,核酸检测最正确最保险的步骤是:
全程应佩戴一次性医用口罩或医用外科口罩,儿童需要戴适合儿童的专用口罩,口罩要充分贴合面部,遮盖好口鼻;
排队保持1米以上间隔,不要聚集和相互交谈;
核酸采样过程中,当前面人员刚采完时,后面的被采样人员不要着急落座,更不能立刻取下口罩,要保持安全距离,等大白做完上一个采样、完成手消毒并拿出新棉签后,再迅速上前坐好,摘下口罩,同时张开嘴巴,屏住呼吸,注意是不要呼气,更不要吸气,做完立即戴好口罩,尽快离开采样点。
此外,注意文明礼仪。咳嗽、喷嚏会产生带细菌或病毒的飞沫,在采集过程中可能出现咽部或鼻部不适,切记不要对着医护人员或其他人咳嗽、打喷嚏,应用纸巾、手帕或肘部遮掩口鼻;核酸检测前后都要注意手部卫生,可使用免洗消毒液等擦拭双手,必要时使用酒精湿巾对手机、身份证等物品进行擦拭。
》》11月8日起施行!河北住宅专项维修资金出台新规定
河北省住房和城乡建设厅联合省财政厅对《河北省住宅专项维修资金管理实施细则》(以下简称《细则》)进行了修订。修订后的细则自11月8日起施行。

新修订的《细则》进一步加大了维修资金归集力度,要求未按规定交存首期维修资金的,开发建设单位不得将房屋交付购房人。同时鼓励新建商品房在办理网签备案时,由开发建设单位足额交纳维修资金,解决维修资金归集不及时、不到位的问题。
根据《中华人民共和国民法典》规定,新修订的《细则》调整了决定使用维修资金的表决比例。将原《细则》“专有部分占建筑物总面积三分之二以上的业主且占总人数三分之二以上的业主讨论通过使用建议”修改为“专有部分面积占比三分之二以上的业主且人数占比三分之二以上的业主参与表决,并经参与表决专有部分面积过半数的业主且参与表决人数过半数的业主同意使用”,以降低业主对于维修资金的申请使用难度,提高资金使用效率。
新修订的《细则》赋予了街道办事处(乡、镇人民政府)对于房屋的紧急维修职责,利于城镇住宅小区尤其是老旧小区在业主委员会缺失时,遇紧急情况能及时维修房屋,维护群众切身利益。
新修订的《细则》还增加了“加强维修资金信息化建设”内容,以规范资金管理,提高资金使用透明度,逐步实现可通过互联网、移动终端等信息化媒介完成维修资金自助交存、收取票据、事项表决、信息查询等便民服务功能。
》》双向八车道!年底开工! 复兴大街部分路段市政化改造工程进展曝光
石家庄公共资源交易网发布了《石家庄市复兴大街涉铁涉渠段市政化改造工程施工招标公告》。
项目建设地点为复兴大街涉铁涉渠段是指复兴大街(规划兆通南路至和平东路段)。计划开工日期2022年12月,计划工期12个月,缺陷责任期24个月。

项目上跨石津总干渠、上跨石德铁路与下穿石济客专,建设复兴大街主路1.243km,左侧辅路1.235km,右侧辅路1.245km,改建石津西路0.42km。其中,主路设特大桥1242.64m/1座,辅路设大桥1110.06m/4座,梯道210.8m/4座。
本项目主路为城市快速路,设计速度100km/h,双向八车道;辅路为城市主干路,设计速度50km/h,双向四车道。
》》栾城区发布征地公告 拟征收280亩地开发公建配套
石家庄市栾城区发布了一则征地补偿安置公告,征收乏马村共计18.6841公顷(约合280.26亩)土地,开发用途为公共管理与公共服务用地。
拟征收乏马村位于乏马村西、308国道以西、隆鑫路以南、航空大街东侧、宏展路北侧的土地,征收面积约18.6841公顷(约280.26亩),开发用途为公共管理与公共服务用地,安置方式为货币安置。

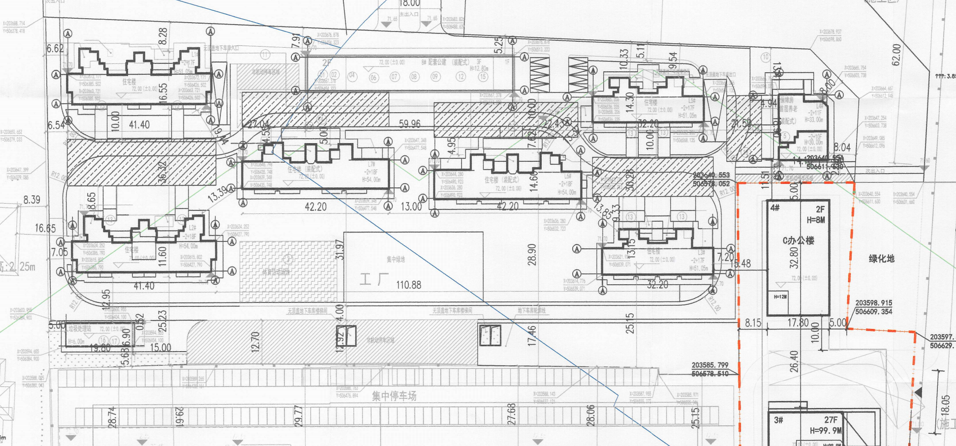
》》长安区新增商业配套!万凯大厦建设项目规划公示 拟建3栋办公楼
石家庄市自然资源和规划局发布了关于万凯大厦建设项目设计方案批前公示的通告。

通告显示,该项目位于长安区东垣东路南、谈固大街西,用地性质为商业服务业设施用地。拟建A、B、C三座办公楼,总层高为2-27层,其中B办公楼为装配式建筑;一座裙房,总层高为4层。


根据经济技术指标表显示,用地面积0.869453公顷(约合13.04亩),总建筑面积46450平方米,建筑密度31.9%,容积率4.02%,绿地率20.1%,机动车停车位350个,非机动车停车位794个。

石家庄房屋托管找绘家青年公寓
绘家青年公寓——石家庄专业房屋资产管理服务公司。以自营+托管的创新形式盘活城市存量资产租赁资源,房源范围覆盖石家庄区域,管理房源超万间,旨在为租客提供美好的健康生活,为业主提供一站式保障服务。
联系电话:400-0311-054
0311-89610000/89690000